Notifikační lišta

Byt 102
1.NP
1+kk

K prodeji

Rezervováno

Prodáno

Budova

Sylván

Podlaží

1.NP

Dispozice

1+kk

plocha

69,7 m²

orientace

JV

PENB

B

Terasa

20,47 m²

garáž/sklep

ANO

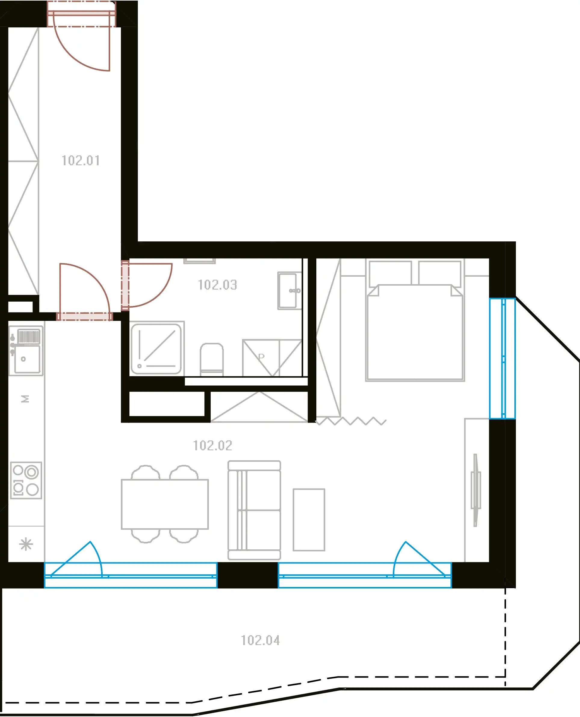
Výměry místností

102.01 | Zádveří 8,46 m²
102.02 | Obývací pokoj + KK 30,38 m²
102.03 | Koupelna + WC 5,46 m²

Užitná plocha

44,30 m²

Podlahová plocha

49,20 m²
11 | Terasa 20,47 m²

Celková plocha

69,67 m²

BYT

102
Žádné patro nevybráno

podlaží

1.NP

Komfort, harmonie
a klid v srdci Plzně

Nový standard bydlení

Skvělá příležitost

Mimořádně úsporné

Energ. tř. B

Prémiová kvalita

3 Standardy

Skvělá příležitost

Výhodná cena​

Zeptejte se
nás na cokoliv

Kontaktujte nás

ENGEL & VÖLKERS

Výhradní prodejce

Plzeň Premium Development | s.r.o.

IČO: 22496971
DIČ: CZ22496971
Adresa: Na Struze 227/1, Nové Město (Praha 1), 110 00 Praha

SPGroup a.s.

Developerská skupina

Odesláním formuláře souhlasím se zpracováním svých osobních údajů. Pro bližší informace si prosím prohlédněte naše zásady zpracování osobních údajů – GDPR a Cookies.