Notifikační lišta

Byt 205
2.NP
1+kk

K prodeji

Rezervováno

Prodáno

Budova

Sylván

Podlaží

2.NP

Dispozice

1+kk

plocha

78,8 m²

orientace

S

PENB

B

Terasa

12,32 m²

garáž/sklep

ANO

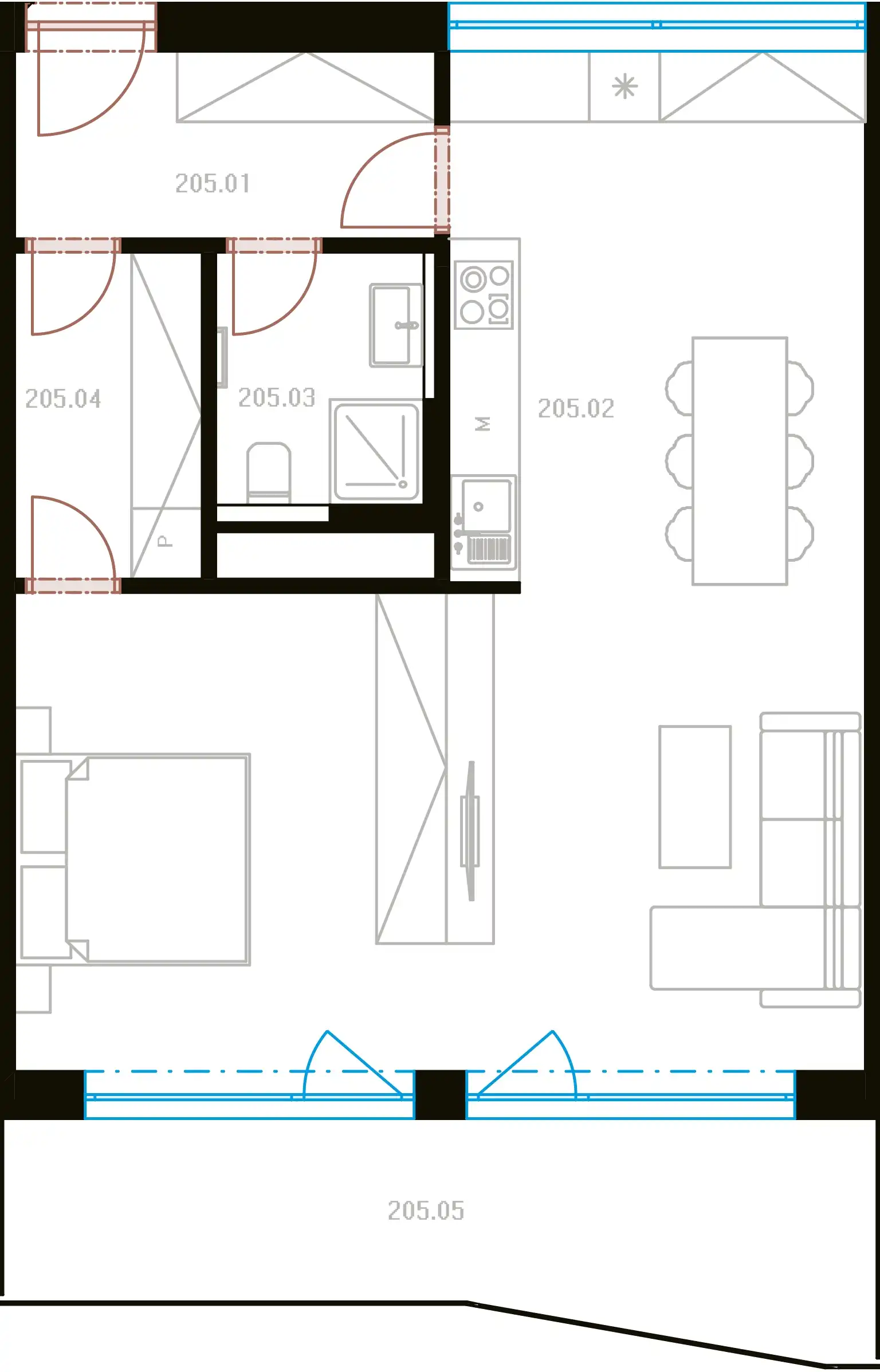
Výměry místností

205.01 | Zádveří 5,74 m²
205.02 | Obývací pokoj + KK 45,95 m²
205.03 | Koupelna + WC 3,82 m²
205.04 | Technická místnost 4,45 m²

Užitná plocha

59,96 m²

Podlahová plocha

66,50 m²
22 | Terasa 12,32 m²

Celková plocha

78,82 m²

BYT

205
Žádné patro nevybráno

podlaží

2.NP

Komfort, harmonie
a klid v srdci Plzně

Nový standard bydlení

Skvělá příležitost

Mimořádně úsporné

Energ. tř. B

Prémiová kvalita

3 Standardy

Skvělá příležitost

Výhodná cena​

Zeptejte se
nás na cokoliv

Kontaktujte nás

ENGEL & VÖLKERS

Výhradní prodejce

Plzeň Premium Development | s.r.o.

IČO: 22496971
DIČ: CZ22496971
Adresa: Na Struze 227/1, Nové Město (Praha 1), 110 00 Praha

SPGroup a.s.

Developerská skupina

Odesláním formuláře souhlasím se zpracováním svých osobních údajů. Pro bližší informace si prosím prohlédněte naše zásady zpracování osobních údajů – GDPR a Cookies.