Notifikační lišta

Byt 303
3.NP
3+kk

K prodeji

Rezervováno

Prodáno

Akční cena

0 Kč
7 977 300 Kč
+Garážové stání a sklep od 599.200,-

Potřebujete pomoci zařídit výhodné financování?

Budova

Sylván

Podlaží

3.NP

Dispozice

3+kk

plocha

87,2 m²

orientace

S

PENB

B

Terasa

11,25 m²

garáž/sklep

ANO

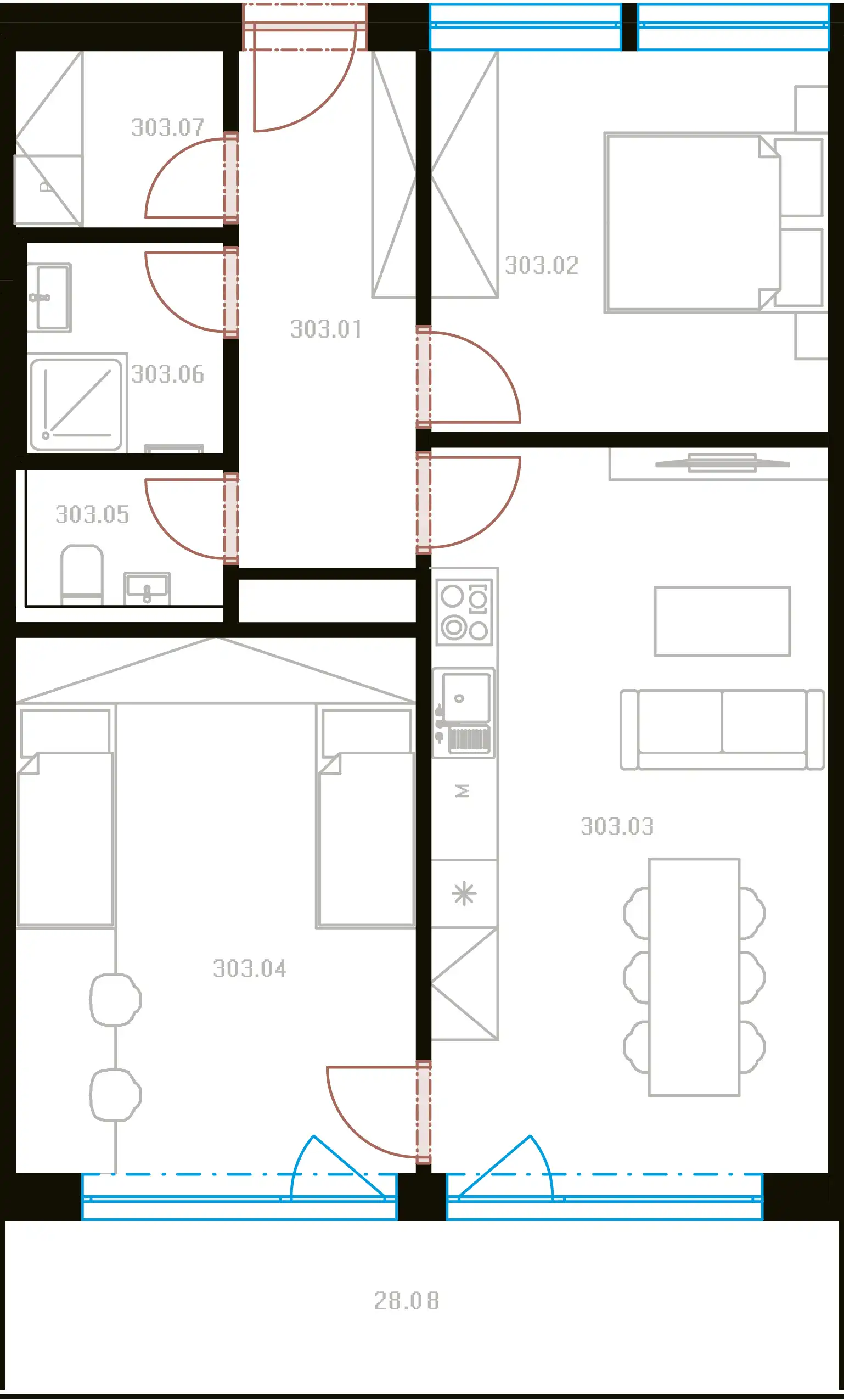
Výměry místností

303.01 | Zádveří 8,23 m²
303.02 | Ložnice 12,11 m²
303.03 | Obývací pokoj + KK 23,55 m²
303.04 | Pokoj 17,71 m²
303.05 | WC 2,18 m²
303.06 | Koupelna 3,36 m²
303.07 | Technická místnost 2,97 m²

Užitná plocha

70,11 m²

Podlahová plocha

75,90 m²
28 | Terasa 11,25 m²

Celková plocha

87,15 m²

BYT

303
Žádné patro nevybráno

podlaží

3.NP

Komfort, harmonie
a klid v srdci Plzně

Nový standard bydlení

Pomůžeme vám
s financováním

Akční cena

Byt 303

0 Kč
7 977 300 Kč

Hodnota nemovitosti:

doba splácení (počet let):

Měsíčně již od

Skvělá příležitost

Mimořádně úsporné

Energ. tř. B

Prémiová kvalita

3 Standardy

Skvělá příležitost

Výhodná cena​

Zeptejte se
nás na cokoliv

Kontaktujte nás

ENGEL & VÖLKERS

Výhradní prodejce

Plzeň Premium Development | s.r.o.

IČO: 22496971
DIČ: CZ22496971
Adresa: Na Struze 227/1, Nové Město (Praha 1), 110 00 Praha

SPGroup a.s.

Developerská skupina

Odesláním formuláře souhlasím se zpracováním svých osobních údajů. Pro bližší informace si prosím prohlédněte naše zásady zpracování osobních údajů – GDPR a Cookies.