Notifikační lišta

Byt 304
3.NP
1+kk

K prodeji

Rezervováno

Prodáno

Akční cena

0 Kč
5 996 000 Kč
+Garážové stání a sklep od 599.200,-

Potřebujete pomoci zařídit výhodné financování?

Budova

Sylván

Podlaží

3.NP

Dispozice

1+kk

plocha

75,1 m²

orientace

J

PENB

B

Terasa

12,32 m²

garáž/sklep

ANO

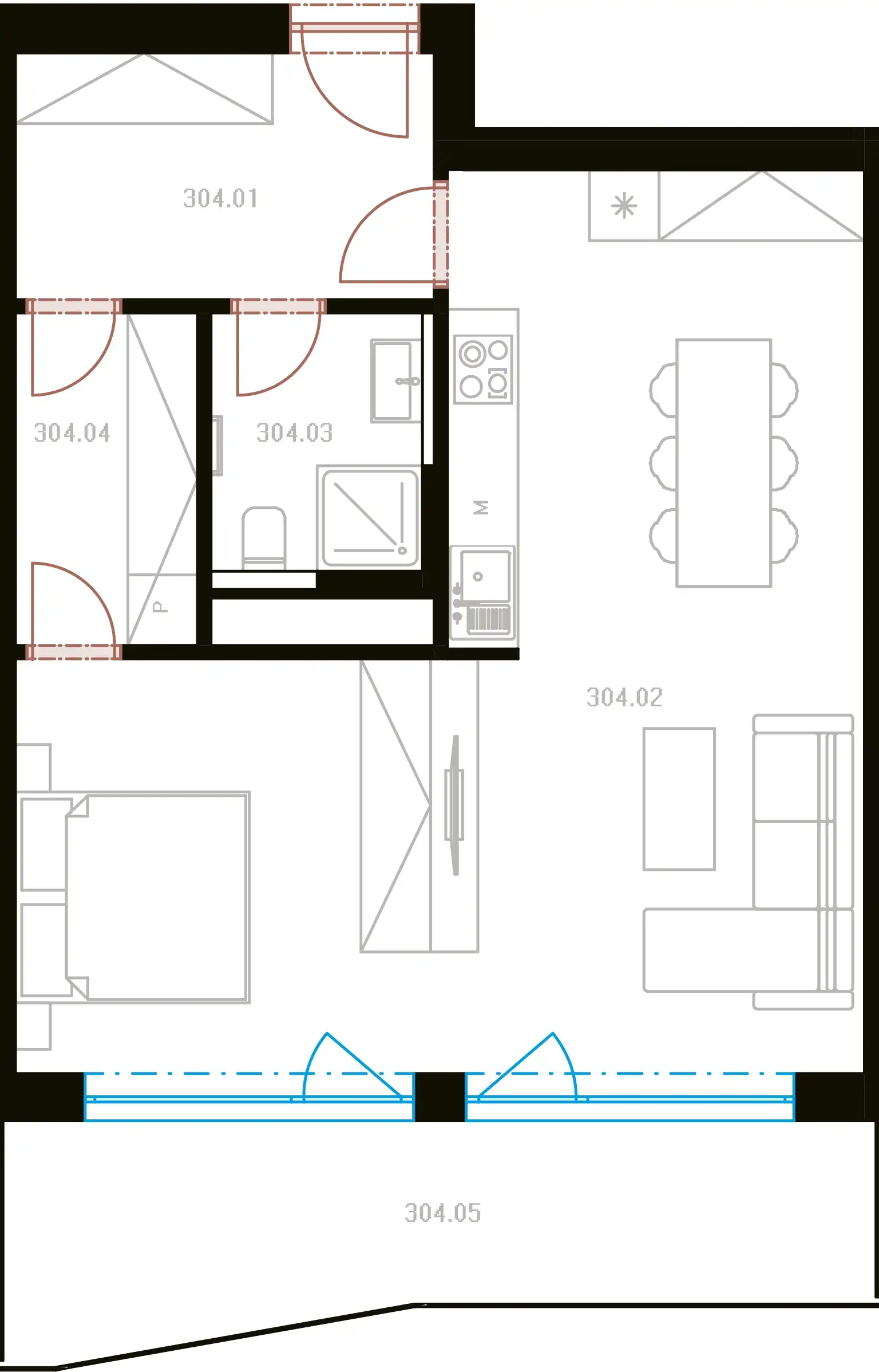
Výměry místností

304.01 | Zádveří 7,52 m²
304.02 | Obývací pokoj + KK 40,39 m²
304.03 | Koupelna + WC 3,98 m²
304.04 | Technická místnost 4,42 m²

Užitná plocha

56,31 m²

Podlahová plocha

62,80 m²
29 | Terasa 12,32 m²

Celková plocha

75,12 m²

BYT

304
Žádné patro nevybráno

podlaží

3.NP

Komfort, harmonie
a klid v srdci Plzně

Nový standard bydlení

Pomůžeme vám
s financováním

Akční cena

Byt 304

0 Kč
5 996 000 Kč

Hodnota nemovitosti:

doba splácení (počet let):

Měsíčně již od

Skvělá příležitost

Mimořádně úsporné

Energ. tř. B

Prémiová kvalita

3 Standardy

Skvělá příležitost

Výhodná cena​